Mmmm..... cookies...

Afdeling

Trøjeløkkevej
170-0

Trøjeløkkevænget 7
Trøjeløkkevej 23, 25
Pilebakken 2, 4
Trøjeløkkevænget 5
Trøjeløkkevej 14, 18, 22, 26, 30
Pilebakken 1
Trøjeløkkevænget 2, 9, 11
Trøjeløkkevej 11, 13, 20, 21, 24, 28

Boliginfo

Adresser

Pilebakken 1, 2 - 4,
4400 Kalundborg

Trøjeløkkevej 11 - 13, 14, 18 - 30, 21 - 25,
4400 Kalundborg

Trøjeløkkevænget 2, 5 - 11,
4400 Kalundborg

Boligtype

Antal boliger

21

Energimærke

D

Andet

Altan: Nej
Elevator: Nej
Husdyr tilladt: Ja

Værelser

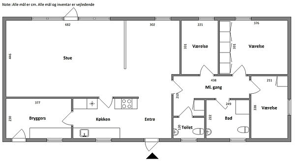
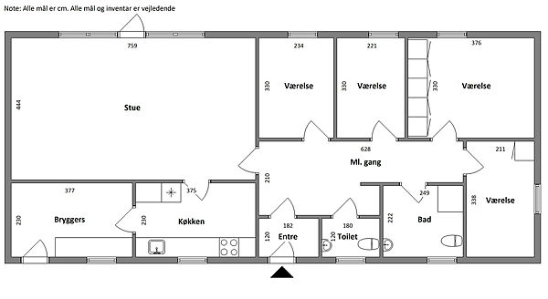
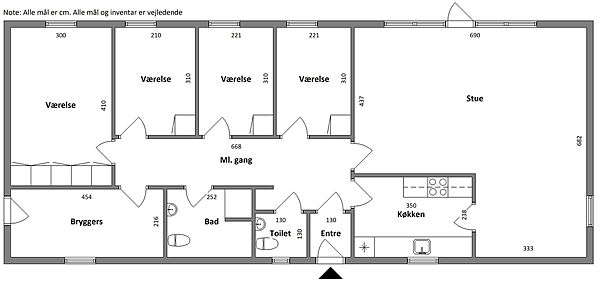
5

Størrelser

122-126 m2

Husleje

7411-7775 kr.

Indskud

29674-30582 kr

Ventetid

6 år - 8 år

Skriv dig op her!